string(3) "621"

Топка ТЛП 1,4/3,5 в Вологде

Версия
для печати
В наличии на складеИзготовление под заказ! Цена по запросу.
Получите скидку
у менеджера
Цена на топка ТЛП 1,4/3,5 с доставкой от 0 рублей с НДС
Доставка ТК в г. Вологда и по России
Безналичный расчет
Эту продукцию можно
купить в лизинг
  • Технические
    характеристики
  • Описание
    товара
  • Дополнительно
    потребуется
  • Сертификаты и
    гарантии
  • Отзывы о
    продукции
  • Видео
    обзор
  • Механическая топка прямого хода с ленточным колосниковым полотном ТЛПХ
  • Работа на каменном и буром угле, антрацитах
  • Позонное деление воздуха для эффективного процесса горения

Технические характеристики топки ТЛП 1,4/3,5

Выход летучих, не менее, % 20
Зольность топлива, не более, % 25
Содержание мелочи (0-6 мм), не более, % 40
Максимальный размер куска, мм 40
Активная площадь решетки горения, м² 3.1
Масса, кг 7840
Марка топки ТЛ 1.4x3.5
Вид топки Механическая ТЛПХ
Диапазон изменения нагрузки, % 50-100

Механические топки прямого хода ТЛПХ 1,4/3,5 в Вологде

Топки механические с ленточной колосниковой решеткой прямого хода ТЛПХ 1.4/3.5 разработана для водогрейных и паровых котлов, промышленных печей, подходят для работы в котельных с механизированной подачей топлива и золошлакоудаления. ТЛПХ топка предназначена для слоевого сжигания сортированных и рядовых антрацитов, каменных углей марки Г и Д с влажностью не более 12 % и бурых углей с влажностью не более 20 %.

Устройство топки ТЛПХ 1,4-3,5

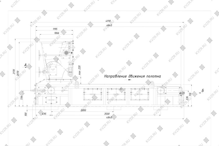
Механические топки прямого хода ТЛПХ 1 4/3 5 Вологда в своем составе имеют основные элементы: угольный ящик, рама с приводом, ведущий и ведомый валы, которые передвигают ленточное колосниковое полотно. Колосниковое полотно собирается на соединительном стержне из крайних, ведущих и ведомых колосников. Ведущие колосники являются тяговыми, приводя колосниковое полотно в движение. Ведомые заполняют промежуточное пространство между ведущими и крайними колосниками для равномерного распределения топлива. Крайние колосники выполняют роль бокового уплотнения, предотвращая просыпание топлива и утечку воздуха между колосниковой решеткой и стенками топки, благодаря этому воздух проходит через топливный слой равномерно.

На боковых поверхностях колосники имеют зубцы, которыми они взаимно входят друг в друга, увеличивая площадь живого сечения при минимальных зазорах и предупреждения выворачивание отдельных частей колосников в случае поломки. Задний вал топки ТЛПХ является ведущим, при помощи него колосниковое полотно натягивается и приходит в движение, а встроенный механизм предотвращает провисание полотна. Звездочки выполнены плавающими, чтобы автоматически выравниваться под положение ведущих колосников для предотвращения преждевременного износа.

Привод топки ТЛПХ 1,4/3,5 состоит из рамы, двигателя, и редуктора ПТБ-1200, или волнового редуктора МВр-350-5491. Скорость движения колосникового полотна регулируется частотным преобразователем либо самим редуктором.

Рама состоит из двух щек, соединенных между собой поперечными балками. Опорный башмак рамы крепится к щеке болтами и бетонируется к фундаменту. На щеках закреплены боковые чугунные уплотнения, по которым скользят полки крайних колосников полотна колосникового. Длина уплотнения подобрана так, что на каждом из них всегда находится один колосник. Этим предотвращается перетекание воздуха из зоны в зону.

Для подъема топочного блока топки ТЛПХ 1.4/3.5 грузоподъемными средствами имеются грузовые скобы, которые срезаются после монтажа.

Принцип работы топки ТЛПХ 1.4/3.5

При помощи транспортера топливоподачи топливо поступает в бункер топки ТЛПХ 1,4 3,5, откуда непрерывным потоком поступает на колосниковую решетку, находящуюся в движении. Толщина топливного слоя регулируется вручную при помощи маховиков. Изменение скорости движения колосникового полотна позволяет подавать необходимое количество угля.

Пространство под решеткой делится на три зоны: зона сушки и зажигания, зона активного горения и тепловыделения, зона догорания и остывания. При помощи вентилятора, через воздуховод, воздух подводится к воздухоподводящим окнам с шиберами. Каждая зона требует определенного количества воздуха (для сушки и догорания его требуется меньше, для активного горения больше), который легко регулируется величиной открывания шиберов. Позонное деление позволяет эффективно организовать процесс горения топлива. Подача воздуха должна быть непрерывна, иначе происходит спекание слоя и пережог колосников. Подвод воздуха под топку ТЛПХ односторонний, с противоположной стороны предусмотрены окна для очистки дутьевых коробов от провала.

В передней части рамы на боковых щеках расположены окна для ремонта колосникового полотна. Окна для очистки от провала закрыты люками, а окна для ремонта в передней части закрыты крышками. Удаление шлака с колосниковой решетки топки ТЛПХ 1.4/3.5 происходит за счет движения колосникового полотна, которое приводится в движение приводом. Удаление шлака из шлакового канала производится транспортером шлакозолоудаления.

Водогрейные котлы устанавливаемые с топками ТЛПХ 1,4 3,5

Котельный завод производит водогрейные котлы, работающие с механическими топками ТЛПХ мощностью 1,86-4,0 МВт.

  • водогрейный котел КВм-1,86 с ТЛПХ
  • водогрейный котел КВм-2,5 с ТЛПХ
  • водогрейный котел КВм-3,0 с ТЛПХ
  • водогрейный котел КВм-3,5 с ТЛПХ
  • водогрейный котел КВм-4,0 с ТЛПХ

Топка ТЛПХ 1.4-3.5 расшифровка

  • Т - топка (устройство для сжигания топлива);
  • Л - ленточная (колосниковое полотно называется лентой);
  • П - прямого;
  • Х - хода.

Купить топку ТЛП 1.4/3.5

Для того чтобы купить топку ТЛПХ 1,4-3,5 в Вологде, вы можете сделать заявку в отдел сбыта по телефону (38-52) 29-97-41 (42), либо оформить заявку онлайн. Наши менеджеры дадут консультацию по подбору вспомогательного оборудования для выбранных вами моделей и рассчитают стоимость доставки до вашего региона и населенного пункта. Также предлагаем вам выполнить проект реконструкции котельной.

Дополнительное вспомогательное оборудование для работы топки ТЛП 1,4/3,5

Для эффективной и надежной работы топки ТЛП 1,4/3,5 в вашей котельной вам потребуется дополнительное оборудование - автоматика ЩУК, транспортер ТС 2-30, бункеры топлива, золы и шлака, котельный блок. Мы предлагаем рассмотреть типовые варианты комплектации.

Типовую схему монтажа вы можете посмотреть во вкладке схемы подключения и монтаж.

Цена 433 000 рублей с НДС

Дополнительные услуги

Сертификат и качество топки ТЛП 1,4/3,5

Топки производства Котельный завод "РЭП" соответствуют строгим стандартам качества и безопасности. Завод производит механические топки в соответствии с требованиями ГОСТ 30735-3001 по Техническим Условиям завода.

Топки имеют все необходимые сертификаты соответствия Техническим регламентам Таможенного союза:

  • ТР ТС 010/2011 «О безопасности машин и оборудования»

Механическая топка ТЛП 1,4/3,5 имеет гарантийный срок 12 месяцев и срок работы при соблюдении правил монтажа и эксплуатации оборудования 10 лет.

Сертификат для топок .jpg
Сертификат на топки

Отзывы о продукции

Отзыва о товаре пока нет, будьте первыми!

Топки механические с ленточной колосниковой решеткой прямого хода ТЛПХ предназначены для слоевого сжигания сортированных и рядовых антрацитов, каменных углей марки Г и Д с влажностью не более 12 % и бурых углей с влажностью не более 20 % и применяются с водогрейными и паровыми котлами, а также промышленных печах. Топки ТЛПХ устанавливаются в котельных с механизированной подачей топлива и золошлакоудаления.

Смотреть видеообзор на

Вопрос-ответ

  • Технические
    характеристики
  • Описание
    товара
  • Дополнительно
    потребуется
  • Сертификаты и
    гарантии
  • Отзывы о
    продукции
  • Видео
    обзор
Документы завода
  • Сертификаты завода
  • Членство в СРО
  • Аттестованная технология сварки
  • Патенты на котельное оборудование
  • Товарные знаки
Смотреть все документы
Сертификат на водогрейные котлы на твердом и жидком топливе
Сертификат на водогрейные котлы на газе и жидком топливе
Сертификат на котлы отопительные паровые КП
Сертификат на топки
Сертификат на щиты управления
Сертификат на скиповые подъемники
Сертификат на золоуловители (циклоны)
Сертификат на конвейеры скребковые
Сертификат на дробилки
Сертификат на клапаны предохранительные
Сертификат на бункер-накопитель механизированный
Сертификат на автоматику газовых горелок
Сертификат о происхождении товара форма СТ-1
Членство в СРО
Членство в СРО
Аттестованная технология сварки
Свидетельство аттестованной технологии сварки
Патент на отопительный котел
Патент на водогрейный котел
Патент на топку водогрейного котла
Патент на водогрейный газовый котел
Патент на водогрейный котел
Патент на топочное устройство твердотопливного котла
Патент на водогрейный котел
HEATEXPERT товарный знак
KVZR товарный знак
STEAMEXPERT товарный знак
Другая похожая продукция
838 000 р. Цена с НДС
6 500 000 р. Цена с НДС
5 670 000 р. Цена с НДС
Вы просматривали эти товары
Цена по запросу
277 000 р. Цена с НДС
Котел КВ ГМ под отечественную горелку
Лизинг
Вид топкиГазовая горелка
Максимальная тепловая мощность, МВт1.3
ТопливоГаз
Отапливаемая площадь, м²9900-14200
940 000 р. Цена с НДС
Циклон СК ЦН 34
Внутренний диаметр корпуса циклона ЦН, мм1200
Производительность циклона, м³/ч6100-14240
176 000 р. Цена с НДС
background