Оглавление

Котлы на древесных отходах

Котел для сжигания древесных отходов в Вологде

Котлы на древесных отходах наиболее актуальны для производств деревообработки, погонажных и мебельных производств, лесхозов, столярных цехов, для сушки древесины в сушильных камерах, также их применяют лесопилки и пилорамы и др.

Котлы на древесине применяются не только как утилизаторы отходов, но и могут использоваться в отоплении и горячем водоснабжении производственных предприятий, при этом не будет финансовых затрат на производимое тепло.

На предприятиях по изготовлению изделий из дерева важна подготовка материала перед ее обработкой. Для этого используется камера для сушки древесины. Камерная сушка является одним из наиболее качественных и быстрых типов обработки материалов. В ней поддерживается и регулируется многие основные факторы, такие как температура воздуха, его влажность или скорость движения в камере.

Но, для обработки материала в данном оборудовании необходимы котлы для сушильных камер на древесных отходах. Нагреватели для сушильных камер необходимы из-за свойств материала. Сырье в необработанном виде не обладает той прочностью, которая от него ожидается.

Котел для сушки древесины решает следующие задачи: придание биологической стойкости, увеличение прочности, поскольку сухой материал лучше выдерживает механическую нагрузку, улучшение качества сырья, стойкость к плесени и грибку.

Котел для сушильной камеры древесины на нашем заводе изготавливается в нескольких модификациях, температурных режимах и мощностей. Сушильный котел экономичен и работает на отходах остающихся после изготовления изделий на вашем производстве, таким образом, позволяя работать безотходно.

Предварительное измельчение, сортировка, и другая подготовка топлива не требуется. Топливо может подаваться в котел сушильной камеры в смешанном виде, даже с высокой степенью влажности (до 65%) без предварительной подсушки.

Котел на отходах деревообработки описание

Твердотопливный котел на отходах деревообработки – агрегат с ручной, вихревой топкой, либо ретортной горелкой мощностью от 0.15 до 2 МВт, разработанный специально для сжигания низкозольных отходов, таких как опилки, щепа, стружка, лузга, пеллеты, дрова, дсп, лдсп, мдф и другие. Котел на биотопливе с вихревой топкой производится с автоматической загрузкой мелкофракционного топлива шнековым транспортером, но возможна и ручная загрузка крупногабаритных отходов через топочную дверь.

Котлы на древесных отходах могут работать с топливом очень высокой влажности, до 60 %.

Вид котлаВид топливаМощность, МВт
Ручнойдрова - поленья, кусковые древесные отходы различных производств типа поддоныот 0.15 до 2 МВт
Универсальный автоматический с вихревой топкойопилки, пеллеты, щепа, возможен ручной режим работы для сжигания дров. поддонов, дсп, лдсп, мдфот 0.15 до 2 МВт
Автоматический с ретортной горелкойпеллетыот 0.15 до 0.8 МВт

Котлы на древесном топливе с ручной топкой

Котлы на древесном топливе – дровах, полетах, дсп, крупногабаритных отходах работают исключительно в ручном режиме работы. Конструкция теплоагрегата состоит из топки и конвективной части. Для загрузки древесного топлива устанавливаются две загрузочные дверки, возможно исполнение агрегата с одной большой дверкой. Данные установки имеют больший объем топочной камеры.

Котлы для утилизации отходов могут быть изготовлены с чугунной колосниковой топкой, либо с водяными колосниками.

Колосниковая топка служит для поддержания слоя твердого топлива. В нижней части топки укладываются чугунные колосники с отверстиями для подачи воздуха и провала золы. На колосники укладывается топливо и происходит его горение. Образующаяся зола проваливается в отверстия в чугунных колосниках. Воздух, необходимый для горения, также поступает через отверстия в колосниках.

Топка с водяными колосниками котла на гранулах имеет следующую конструкцию – низ стальной топочной части блока используется для слоевого сжигания древесного топлива. Рама топки представляет собой стальные трубы, по которым движется нагреваемая в котлоагрегате вода. Между трубами вварены полосы металла с отверстиями для подачи воздуха в топку. На водяных колосниках происходит сгорание топлива. За счет движения теплоносителя и воздуха трубы топки охлаждаются. Маленькие отверстия в полосе не дают проваливаться в зольник не догоревшему топливу.

Преимуществом водяных колосников перед чугунными является более равномерное распределение области подачи воздуха в слой топлива, а также отсутствие провала золы в нижний короб. В котлах для паллет с водяными колосниками механический и химический недожег меньше.

Котел на древесных отходах с вихревой топкой

Преимущество вихревой топки перед остальными является возможность сжигания очень влажного древесного топлива.

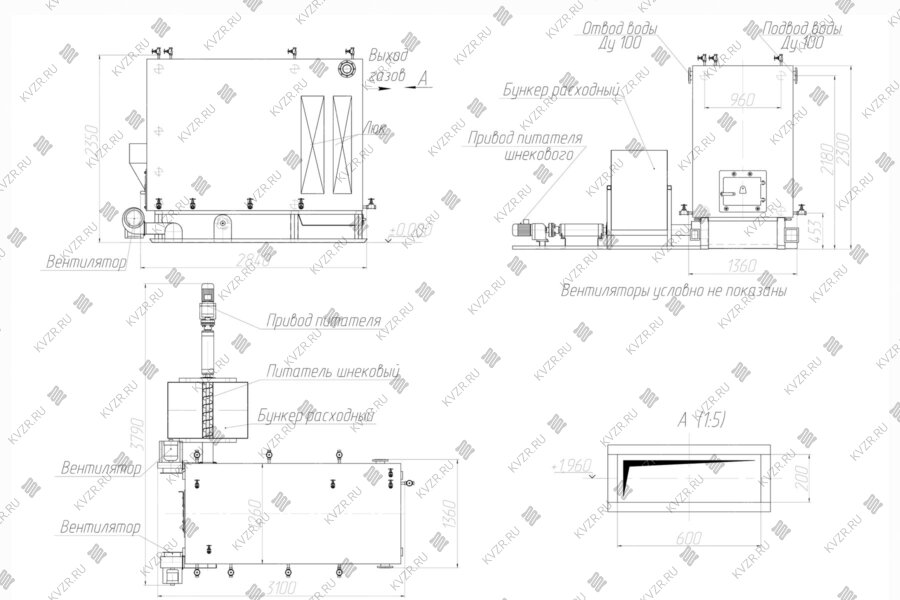
Конструкция котла на биомассе с вихревой топкой состоит из бункера, шнекового питателя, вихревой топки, котельного блока с конвективными пакетами.

Вихревая топка котла для щепы и стружки представляет собой опорный каркас под установку агрегата. При работе с древесными отходами высокой влажности применяется зажигательный пояс, который способствует усилению зажигания и устойчивости горения. Облицовка топки выполняется из огнеупорного кирпича и шамотного бетона. Пояс зажигания в котором держится высокая температура препятствует теплоотдачи от факела, за счет чего происходит интенсивная сушка сырых древесных отходов. Вихрь создается раздельной подачей воздуха. Для создания первичного вихря в зону топливоподачи высоконапорным вентилятором подается первичный воздух. Вторичный воздух подается вентилятором среднего давления для дожига и поддержания вторичного вихря.

Из бункера топливо в котел работающий на древесном топливе подается шнековым питателем. Приводом питателя служит мотор редуктор. Для того, чтобы в шнековом питателе не возникло воспламенение топлива в конструкции предусмотрено воздушное охлаждение выходного узла.

Бункер и привод питателя располагаются на общей раме. Конструкция бункера под древесное топливо и узел соединения со шнековым питателем позволяет полностью опорожнять бункер за счет питателя топлива.

Водогрейный котел для сжигания отходов состоит из топочной камеры экранированной газоплотными сварными панелями с вертикальными трубами соединенных раздающими и собирающими коллекторами. Обмуровка выполняется из тепловой обшивки и декоративных листов. Выход газов осуществляется сзади и сверху топочного блока.

Принцип работы вихревой топки котла на древесине. В вихревой топке при вводе топлива в топку скорость воздушного потока значительно больше скорости движения частиц топлива, то есть частица топлива постоянно обдувается новыми порциями свежего воздуха, обеспечивающими высокую интенсивность горения. Но по мере потери частицей топлива массы и размера скорость ее движения приближается к скорости движения воздушного потока. В этой части топки котла на др воздушный поток уже значительно обеднен кислородом, поэтому, несмотря на малый размер частиц, процесс горения резко замедляется. В результате возникает значительный механический недожог. Увеличению механического недожога способствует центробежная сила, образующаяся в результате кругового движения частиц топлива. При этом более крупные частицы отбрасываются в периферийную область, к стенкам топки, где они не успевают догореть, поскольку температура стенок топки ниже температуры газового потока в центральной части топки. Для устранения механического недожога применяют распределенную по высоте подачу воздуха в топку котла на коре. Такая подача, с одной стороны, турбулизирует поток и способствует дожиганию мелких частиц, а с другой - отбрасывает крупные частицы топлива в центральную часть топки, где существуют обратные газовые потоки, возвращающие крупные частицы в очаг горения.

Котлы на отходах ДСП

При утилизации продуктов от переработки плит дсп, лдсп, мдф выделяются токсичные вещества фенолы и формальдегиды, что требует определенной специфики переработки. Котлы на отходах мебельного производства, за счет высокой температуры, более 1200 градусов, производят полное разложение вредных для атмосферы фенольных газов на углерод и водород.

Преимущества котлов на гранулах с вихревой топкой

  • полностью автоматический режим работы котла на дт;
  • вихревой режим работы горения обеспечивает максимальный дожиг частиц топлива;
  • бездымное сгорание древесного топлива;
  • автоматическое пажаротушение топливоподачи, не требуется установка систем искрогашения;
  • котлоагрегат работает на нескольких видах топлива, возможна утилизация любых отходов деревообрабатывающего предприятия;
  • работа с древесным топливом высокой влажности (60%);
  • зольность отсутствует, чистка аппарата производится очень редко;
  • автоматический режим дозирования подачи топлива;
  • выбранная скорость движения воды в теплообменных трубах от 1 до 1.5 м/с обеспечивает безнакипную работу агрегата.

Автоматические ретортные котлы на древесных отходах

Промышленный водогрейный котел на древесных отходах, стружке, грбыле, пелетах с ретортной топкой работает полностью автоматически. Автоматика осуществляет автоматический розжиг, запуск, работу регулировку давления и остановку агрегата в случае превышения допустимых параметров работы. Автоматика осуществляет автоматическую подачу топлива с контролем производительности по заданной температуре теплоносителя. Подача воздуха осуществляется в зависимости от объема поданного древесного топлива. В котле для сжигания отходов с автоматической подачей предусмотрена система пожаротушения в случае воспламенения топлива в топливопроводе.

Комплект автоматики состоит из щита управления агрегатом, контрольно измерительных приборов КИП и исполнительных механизмов.

Твердотопливные котлы на отходах производства работают с автоматикой, включающей в себя контроль и регулировку следующих параметров:

  • разряжения в топочной камере;
  • давления теплоносителя на выходе;
  • температуры теплоносителя на выходе;
  • содержания кислорода в дымовых газах;
  • наличие давления в системе пожаротушения топливопровода;
  • контроля факела;
  • контроля минимального расхода теплоносителя.

Ретортная горелка котла для древесины имеет Г-образную форму и снабжена чашей для сжигания топлива. Топливо на чашу поступает снизу реторты. Отходы движутся из бункера за счет шнека. Пламя горелки направляется вверх. Воздух, поступающий в область горения, поддерживает интенсивность пламени и охлаждает ретортную горелку, что предотвращает перегрев оборудования. Горелка снабжена отверстиями, через которые проникает вторичный воздух.

Паровой котел на гранулах

Котел паровой для биотоплива изготавливается стальным двух барабанным с естественной циркуляцией с экранированной топочной камерой, вихревой топкой и автоматической шнековой подачей. Котлоагрегат работает с принудительной подачей питательной воды.

Конструкция барабанного парового котла для пилорамы состоит из:

  • трубной системы с барабанами;
  • вихревой топки;
  • натрубной теплоизоляции с каркасом и обшивкой;
  • системы питания;
  • системы управления;
  • тяговое устройство;
  • бункера для доевесного топлива;
  • шнекового питателя;
  • котельного блока с конвективными пакетами.
ПаропроизводительностьТемпература пара, доДавление пара, доКонструкцияВид древесного топлива
1000 кг пара час115 - 170 °С0.9 МПа 99 кгс/см2)барабанныйопилки, щепа, пеллеты, при ручной загрузке - дрова, поддоны и др.

Котел на агропеллетах работает в полностью автоматическом режиме. Автоматика осуществляет автоматический розжиг, запуск, работу и остановку агрегата. На случай возникновения необходимости сжигания дополнительно крупногабаритных древесных отходов, автоматика может переключиться в ручной режим работы котла на полетах и подача топлива осуществляется вручную через загрузочную дверку.

Одним из самых важных устройств, обеспечивающих безопасную эксплуатацию установки, является предохранительный клапан. Он обеспечивает сброс пара при превышении давления в агрегате свыше допустимого и предохраняет установку от разрушения.

Наши агрегаты являются аналогами бийских, ковровских и тверских котлов на древесных отходах, таких производителей как Автоматик-Лес, Союз Проект, Вектор, Теплодар, ЭПМ, Теплогидромаш, Уралкотел, Экодрев Тверь, Ирбис, Lavoro eco, таких марок как Гейзер Termowood, Гейзер Biomasse, Гейзер Energy, Bio Vulkan Pro, Eco Wood, HT MegaBio, Гейзер-termowood, УТПУ-СПК, таких моделей как КВр ДВО, КВм ДВО.

Купить котел на древесных отходах

Для того чтобы купить котел на отходах деревообработки в Вологде, вы можете оформить заявку в отделе сбыта по телефону (38-52) 29-97-41 (42), либо оформить заявку онлайн. Наши менеджеры дадут консультацию по подбору вспомогательного оборудования для выбранных вами моделей и рассчитают стоимость доставки до вашего региона и населенного пункта по всей России и республике Казахстан, Таджикистан и Монголии. Также предлагаем вам выполнить проект реконструкции котельной.

Автор: Антон Гор

Дата публикации: 08.12.2025

Похожие статьи
О заводе
  • Котельный завод «РЭП» выпускает водогрейные котлы марки HeatExpert и паровые котлы STEAMEXPERT, топки, транспортеры, скиповые подъемники, циклоны и вспомогательное оборудование. Каждое изделие собирается с тщательным контролем качества на всех этапах.
  • Наше оборудование успешно работает практически во всех регионах России от Крыма до Камчатки, на территории соседних государств Казахстана, Белоруссии, Монголии, Литвы, Узбекистана.
  • Разработки проектного отдела завода имеют патенты. Оборудование производится по типовым проектам и по техническим заданиям.
  • Вся продукция завода сертифицирована.
  • Аттестованная технология сварки позволяет выпускать поднадзорную продукцию.
  • Выполняем разделы проектов теплоснабжения для прохождения экспертизы и составления проектно-сметной документации. Состоим в реестре членов СРО для выполнения проектных и строительных работы.
  • Выполняем инженерно-консультационные услуги по эксплуатации и наладке котельных.
3D-турпо заводу

Виртуальный тур нашего завода

3D-турпо котельной

Виртуальный тур нашего завода

Смотреть видеообзор на

Котельный завод изготавливает водогрейные промышленные котлы на древесных отходах, отапливаемая площадь от 2000 м². Температура воды 95 - 115 градусов.

Наш youtube канал
Документы завода
  • Сертификаты завода
  • Членство в СРО
  • Аттестованная технология сварки
  • Патенты на котельное оборудование
  • Товарные знаки
Смотреть все документы
Сертификат на водогрейные котлы на твердом и жидком топливе
Сертификат на водогрейные котлы на газе и жидком топливе
Сертификат на котлы отопительные паровые КП
Сертификат на топки
Сертификат на щиты управления
Сертификат на скиповые подъемники
Сертификат на золоуловители (циклоны)
Сертификат на конвейеры скребковые
Сертификат на дробилки
Сертификат на клапаны предохранительные
Сертификат на бункер-накопитель механизированный
Сертификат на автоматику газовых горелок
Сертификат о происхождении товара форма СТ-1
Членство в СРО
Членство в СРО
Аттестованная технология сварки
Свидетельство аттестованной технологии сварки
Патент на отопительный котел
Патент на водогрейный котел
Патент на топку водогрейного котла
Патент на водогрейный газовый котел
Патент на водогрейный котел
Патент на топочное устройство твердотопливного котла
Патент на водогрейный котел
HEATEXPERT товарный знак
KVZR товарный знак
STEAMEXPERT товарный знак
background